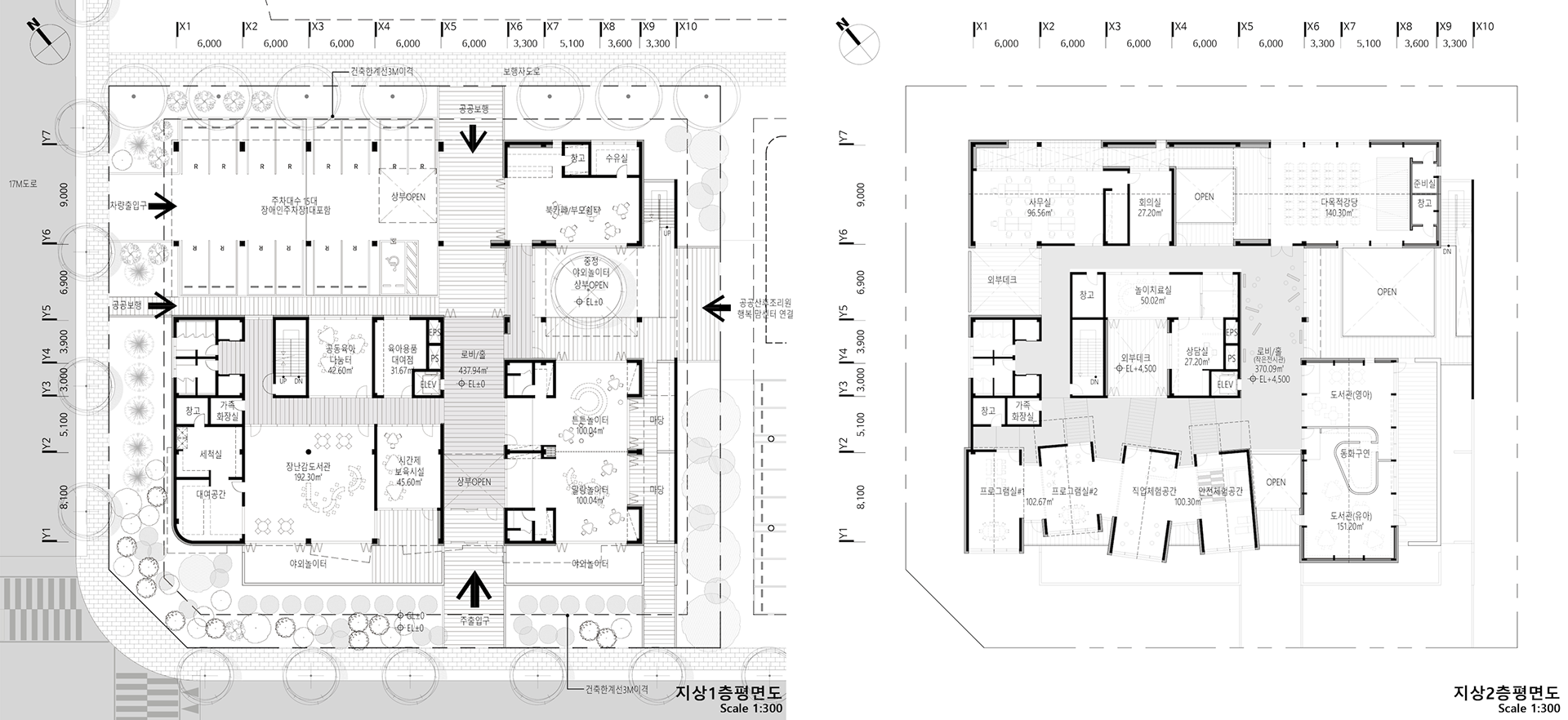
우리가 살고 있는 도시 마저도 양극화 현상이 도드라진다. 거대도시는 거품이 줄지 않고 지방도시는 소멸이라는 위기감에 더욱 위축되고 있다. 젊은 세대들의 유출은 가속화 되고 미래를 위한 인프라의 구축은 중소도시의 부담감으로 작용한다. 이러한 일련의 지속에서 도시와 건축의 방향성은 좀 더 또렷한 구상이 필요하다. 최근 중소도시 공공건축은 지역의 활력과 새로운 세대 구성원들을 지원하는 시설 공급에 적극적인 행보를 보이고 있다. 거창군 육아드림센터 또한 동일한 과정의 선상이라 볼 수 있다. 대지는 이미 인접하여 공공산후조리원과 행복맘센터와 연계하여야 하는 위치에 있다. 우리는 이곳에 과거부터 인식되어 온 집의 표상을 다시 가져옴으로 인해 안전성이 보장되고 다양한 공간적 체험이 될 수 있는 형태를 제안한다. 우선 행복맘센터의 주차장 위치로 인해 보행자가 차량으로 단속되지 않는 위치에 주차장을 배치하고 전면도로와 후면 보행도로에서 접근이 될 수 있게 하였다. 또한 맘센터에서 중정을 경유하고 공유할 수 있게 하였다. 튼튼, 말랑 놀이터 공간은 연속되고 각각 외부 공간과 이어질 수 있게 하였고 부모들은 쉼터에서 아이들 시야권에 머무를 수 있게 하였다. 주차장이 북서측 공간으로 배치됨에 따라 남향으로 면한 공간이 많아 졌으며, 보행공간에 교차가 발생하지 않아 안전한 이용이 가능하다. 체험실과 프로그램실은 모두 가변형 벽체로 구획하여 공간의 조합으로 다양한 규격이 제공되며, 앞서 얘기한 집의 표상으로 남은 박공 지붕과 조금씩 어긋나게 바라보는 방향성은 공간조합에 따라 공간감의 변화가 생겨난다. 외부공간의 담장은 외부에서 접근은 제한하지만 시야는 확보되게 함으로써 내부관찰과 외부통제가 가능하다. 거창군 육아드림센터는 공공건축이 다음 세대를 아울러 품을 수 있는 공간을 제안하고 있다.
Back to Top